Residential Projects
Below are some of our more recent residential projects. If you’d like to speak with us about improving or designing your own home, please get in touch.
Chesterfield
We are providing a complete architectural service from initial concept through to overseeing construction for the transformation of this Victorian home. The project includes a large rear and loft extension and a full redesign to improve how the home functions day to day, while respecting the character and charm of the original property.
Mansion Cottages
Removal of an unsympathetic extension on this Grade II listed cottage and design of a new addition to better complement the historic character while opening up the kitchen/living space. The project also included the creation of a vaulted oak-framed loft reading room, adding a calm, light-filled space that blended into the original home.
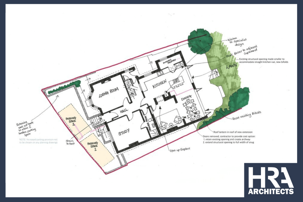
Tapleys
We developed a comprehensive masterplan for this property to suit how the owners want to live and use their spaces. The next stage of the project involves converting the existing carport into an oak-framed annex for an elderly relative, creating an independent but supportive living space that feels connected to the main home.
Walham Yard
Full internal refurbishment of this four-storey mews house which originally formed part of a row of historic coach houses. Located within a conservation area, the project included converting the existing garage into additional living space and carefully upgrading the interiors to enhance comfort while preserving the property’s character.
Charter House
We worked with the owners of this Victorian detached home on a tight site to explore how best to open up the interior and create a more free-flowing layout. Several design options were developed to show different ways of improving space, light, and movement through the home, helping the client visualise the potential before choosing the best approach.
Clappers Meadow
We oversaw the masterplan for this property, starting with the removal of an outdated rear conservatory and redesign of the main entrance. From initial concept to Building Control approval, we created a new oak-framed entrance hall that modernises the front elevation and adds practical storage space, improving both the look and function of the home.
Meadow View
Having previously built the home, the client wanted to add an ancillary building with practical ground-floor storage for vehicles and a flexible upper level that could evolve with the family’s needs. Located within a conservation area and the Green Belt, the project required close coordination with planning consultants and the local authority.
Richmond Park Rd
We redesigned the internal layout and introduced a loft conversion to add an extra bedroom and make the home flow more naturally. The new layout improved how spaces connected, creating a home that better suited the client’s lifestyle and needs.





Every home tells its own story. We design spaces that reflect the people who live in them—tailored to your lifestyle, taste, and vision. That’s what makes residential design so rewarding.








See some of our commercial projects or development projects.
If you’d like to speak to one of the team, give us a call or drop us an email; we’d love to hear from you.